Stone Crafted Residence

  • $830,000
Logan Road, Greenslopes, Greater Brisbane, Queensland, 4120, Australia, Australia, Queensland, Brisbane
For Sale New
Logan Road, Greenslopes, Greater Brisbane, Queensland, 4120, Australia, Australia, Queensland, Brisbane
  • $830,000

Description

377 LOGAN RD, GREENSLOPES QLD 4120 – STONE APARTMENT


Temukan kemewahan dan kenyamanan di Stone Apartment, hunian elegan di Greenslopes yang hanya 10 menit berkendara ke Brisbane CBD dan 9 menit berjalan kaki ke stasiun kereta terdekat. Setiap unit dirancang dengan sentuhan desain mewah dan modern yang menghadirkan suasana tenang sekaligus berkelas. Stone Apartment adalah pilihan sempurna bagi Anda yang mencari kenyamanan dan keanggunan dalam satu tempat. Jangan lewatkan kesempatan ini—miliki unit impian Anda sekarang juga!

Estimasi selesai pada early 2028

Apartment dengan 1 kamar tidur, mulai dari $ 830,000
Apartment dengan 2 kamar tidur, mulai dari $ 935,000
Apartment dengan 3 kamar tidur, mulai dari $ 1,500,000

Lokasi:
10 menit berkendara ke Brisbane CBD
11 menit berkendara ke Westfield Carindale
16 menit berkendara ke Westfield Mt. Gravatt
11 menit berkendara ke Griffith University, Nathan Campus
14 menit berkendara ke Queensland University of Technology
23 menit berkendara ke The University of Queensland
5 menit berkendara ke Princess Alexandria Hospital
5 menit berkendara ke Greenslopes Private Hospital
9 menit jalan kaki ke Buranda Station
1 menit jalan kaki ke Bus Stop

 

follow @estates.id untuk properti di Australia lainnya.

Telusuri Properti lainnya hanya di estates.id

Property Documents

STONE BROCHURE WITH FLOOR PLANS

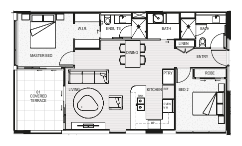
Floor Plans

image

Description:

  • The information presented here in was produced prior to the completion of construction.
  • Floor areas, dimensions,fittings, finishes, tile patterns and setouts, and the like, and the specifications thereof, are indicative only, arenot to scale and are subject to change without notice.
  • Warranty that the information presented herein is arepresentation ofthe final product is not given either expressly or implied.
  • Prospective purchasers must rely ontheir own enquiries.
  • All areas, numbers are rounded to the nearest whole number.

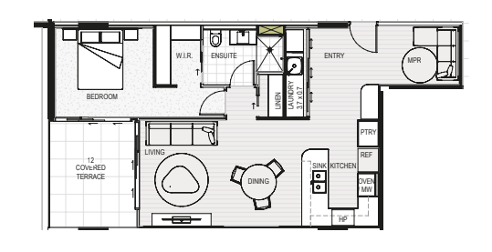
image

Description:

  • The information presented here in was produced prior to the completion of construction.
  • Floor areas, dimensions,fittings, finishes, tile patterns and setouts, and the like, and the specifications thereof, are indicative only, arenot to scale and are subject to change without notice.
  • Warranty that the information presented herein is arepresentation ofthe final product is not given either expressly or implied.
  • Prospective purchasers must rely ontheir own enquiries.
  • All areas, numbers are rounded to the nearest whole number.

image

Description:

  • The information presented here in was produced prior to the completion of construction.
  • Floor areas, dimensions,fittings, finishes, tile patterns and setouts, and the like, and the specifications thereof, are indicative only, arenot to scale and are subject to change without notice.
  • Warranty that the information presented herein is arepresentation ofthe final product is not given either expressly or implied.
  • Prospective purchasers must rely ontheir own enquiries.
  • All areas, numbers are rounded to the nearest whole number.

Overview

  • Apartment
  • Property Type
  • 1
  • Bedroom
  • 1
  • Bathroom
  • 1
  • Garage
  • 84

Mortgage Calculator

Monthly
  • Principal & Interest
$
$
%

Sub listings

Title Property Type Price Beds Baths Property Size Availability Date
510 2BT6 $935,000 2 2 82
506 3BT6 $1,500,000 3 2 120

Similar Listings

Compare listings

Compare